世田谷区の新築戸建て情報|センチュリー21ライフステーション > シャンボール二子玉川園
二子玉川駅徒歩5分!
玉川高島屋や二子玉川ライズまで徒歩4分!
耐震補強工事を実施済みです!
※写真や図と実際の現状とが異なる場合は現状を優先させていただきます。











(※元利均等方式 金利5.00%まで ※返済年数5~50年まで入力できます)
(※ボーナスは年2回で計算しています。1000万円まで入力できます)
(※物件購入時、その他諸費用が発生する場合がございます)
| 所在地 | 東京都世田谷区玉川2丁目 | ||
|---|---|---|---|
| 交通 | |||
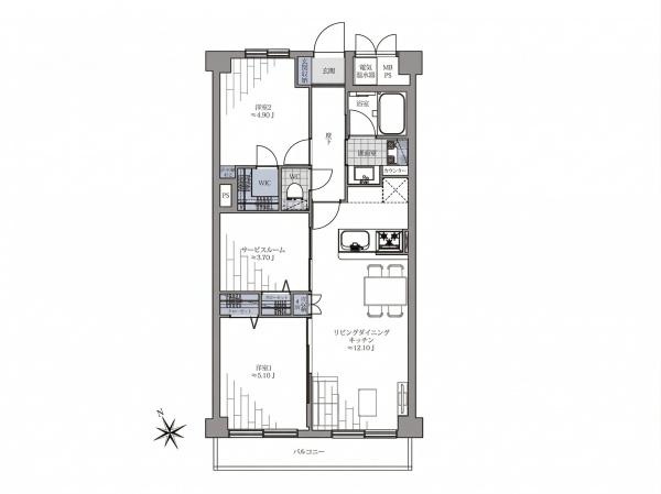
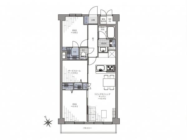
| 間取り/詳細 | 2LDK | ||
| 専有面積/バルコニー面積 | 58.32㎡/5.40㎡ | ルーフバルコニー面積/テラス面積/専用庭面積 | -/-/- |
| 価格 | 7,080万円 | ||
| 管理費 | 17,200円 | ||
| 修繕積立金 | 20,880円 | 修繕積立基金 | - |
| 権利金 | - | 駐車場/月額料金 | 空有/30,000円 |
| 土地の敷金/保証金 | -/- | 借地料/借地期間 | -/- |
| 土地権利 | 所有権 | 国土法届出要否 | 不要 |
| 用途地域 | - | 地勢 | - |
| 種別/構造 | 中古マンション/鉄筋コンクリート | 向き | 南西 |
| 築年月(築年数) | 1981年 4月 (築45年) | ||
| 所在階/階建 | 2階/5階建 | 棟総戸数/販売戸数 | 23戸/1戸 |
| 管理組合有無 | - | 管理形態 | 管理会社に全部委託 |
| 管理員の勤務形態 | 日勤 | 管理会社 | 株式会社プレストサービス |
| 取引態様 | 一般媒介 | 現況 | 空家 |
| 引渡し | 即時 | 建築確認番号 | - |
| 物件番号 | 102788529 | 取引条件の有効期限 | 2026年04月21日 |
| リフォーム |
2025年12月 キッチン 浴室 トイレ 壁 床 全室 洗面所 給排水管 建具 |
||
| 設備条件 |
|
||
| 備考 | いつでもご内覧可能ですのでお気軽にご連絡ください! | ||
| 取扱会社 |
|
||
| QRコード |
このQRコードを読み取ることで、スマホでも物件情報を確認できます。 |
||
※地図上に表示される物件の位置は付近住所に所在することを表すものであり、実際の物件所在地とは異なる場合がございます。